- HAGNÝTAR UPPLÝSINGAR
- Eyðublöð
- Nám & kennsla
- Nemendur og foreldrar
- STEFNUR OG ÁÆTLANIR
- Menntastefna Húnaþings vestra
- FRÆÐSLUEFNI
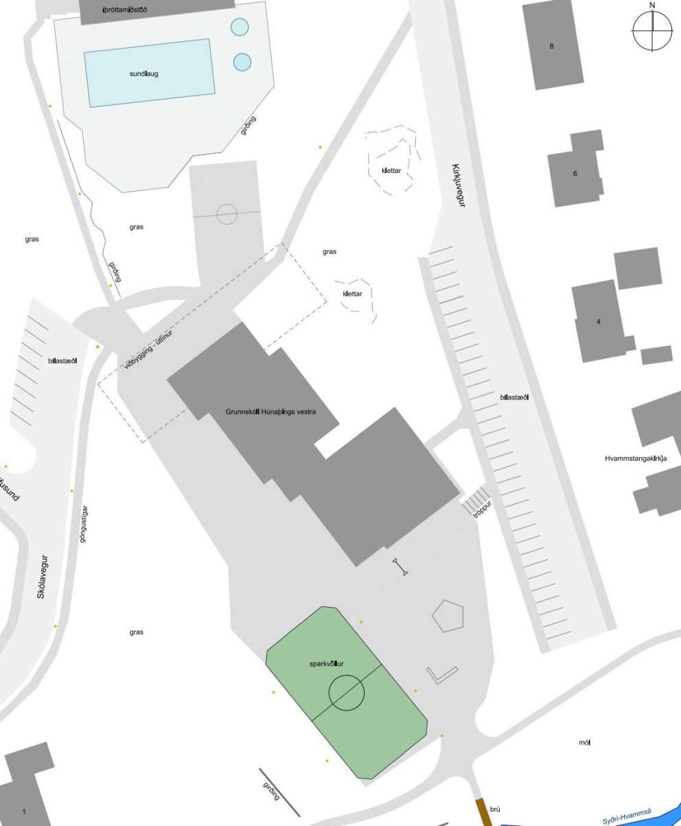
Í morgunsárið tóku allir nemendur skólans þátt í hópavinnu þar sem þau fengu tækifæri til að teikna og hanna sínar hugmyndir um skólalóð. Það er gaman að segja frá því að nemendur tóku virkan þátt og settu fram margar áhugaverðar hugmyndir.
Allar hugmyndir nemenda verða svo sendar til Teiknistofu norðurlands þar sem þær verða teknar saman og nýttar við útfærslur og hönnunarvinnu við viðbyggiungu og skólalóð.
Þetta er liður í virku íbúalýðræði við hönnun og framkvæmd viðbyggingar og skólalóðar. Síðar í ferlinu verða hugmyndir kynntar starfsfólki og foreldrum til athugasemda og frekari skoðunar.
Á myndinni sem sjá má hér til hægri er kort af skólanum og fyrstu hugmyndum af útlínum viðbyggingar. Nemendur fengu þetta kort og glærukynningu og unnu svo í hópum við að flokka skólalóðina eftir eftirfarandi flokkum:
Undir hverjum þessara flokka koma nemendur svo með hugmyndir og stilla þeim upp á teikninguna. Flott og áhugaverð vinna nemenda.
Kirkjuvegi 1
|
Sími 455-2900 Frístund: 895-2915 |
Skrifstofa skólans er opin frá |
Tilkynningar um leyfi eða veikindi nemenda: 455-2900 / grunnskoli@skoli.hunathing.is