- HAGNÝTAR UPPLÝSINGAR
- Eyðublöð
- Nám & kennsla
- Nemendur og foreldrar
- STEFNUR OG ÁÆTLANIR
- Menntastefna Húnaþings vestra
- FRÆÐSLUEFNI
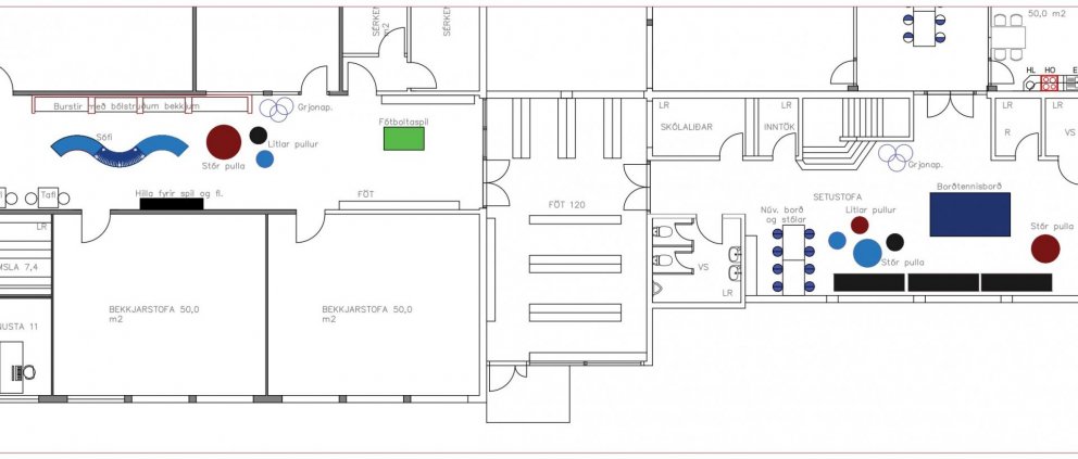
Í samráði við nemendaráð er búið að panta ný húsgögn í sameiginleg biðrými nemenda. Um er að ræða breytingar á tölvukennslu og stefnt er að því að færa hana inn í stofur í stað þess að hafa á ganginum. Þá skapast aukið seturými fyrir nemendur í frímínútum.
Nú þegar hefur borðennistborði verið komið fyrir í suðurenda og þangað koma svo nýir bekkir, setupullur og grjónapúðar. Á norðurgang kemur sveigður bekkur, setupullur og til stendur að smíða í samvinnu við nemendur burstir með bólstruðum bekkjum. Kostnaður við þessar endurbætur nemur hátt í fjórum milljónum króna og nemendafélagið fjármagnar um helming þess kostnaðar.
Á myndinni hér til hægri má sjá skipulag setusvæðis nemenda.
Kirkjuvegi 1
|
Sími 455-2900 Frístund: 895-2915 |
Skrifstofa skólans er opin frá |
Tilkynningar um leyfi eða veikindi nemenda: 455-2900 / grunnskoli@skoli.hunathing.is